Plans have been submitted to convert upper floors of buildings on Stone High Street into 21 flats.

The proposal relates to 48 to 60 High Street – including the first floor units in the arcade. The plans would see existing tenants Direct Recruitment and Rooftop Studios having to relocate from their current premises.
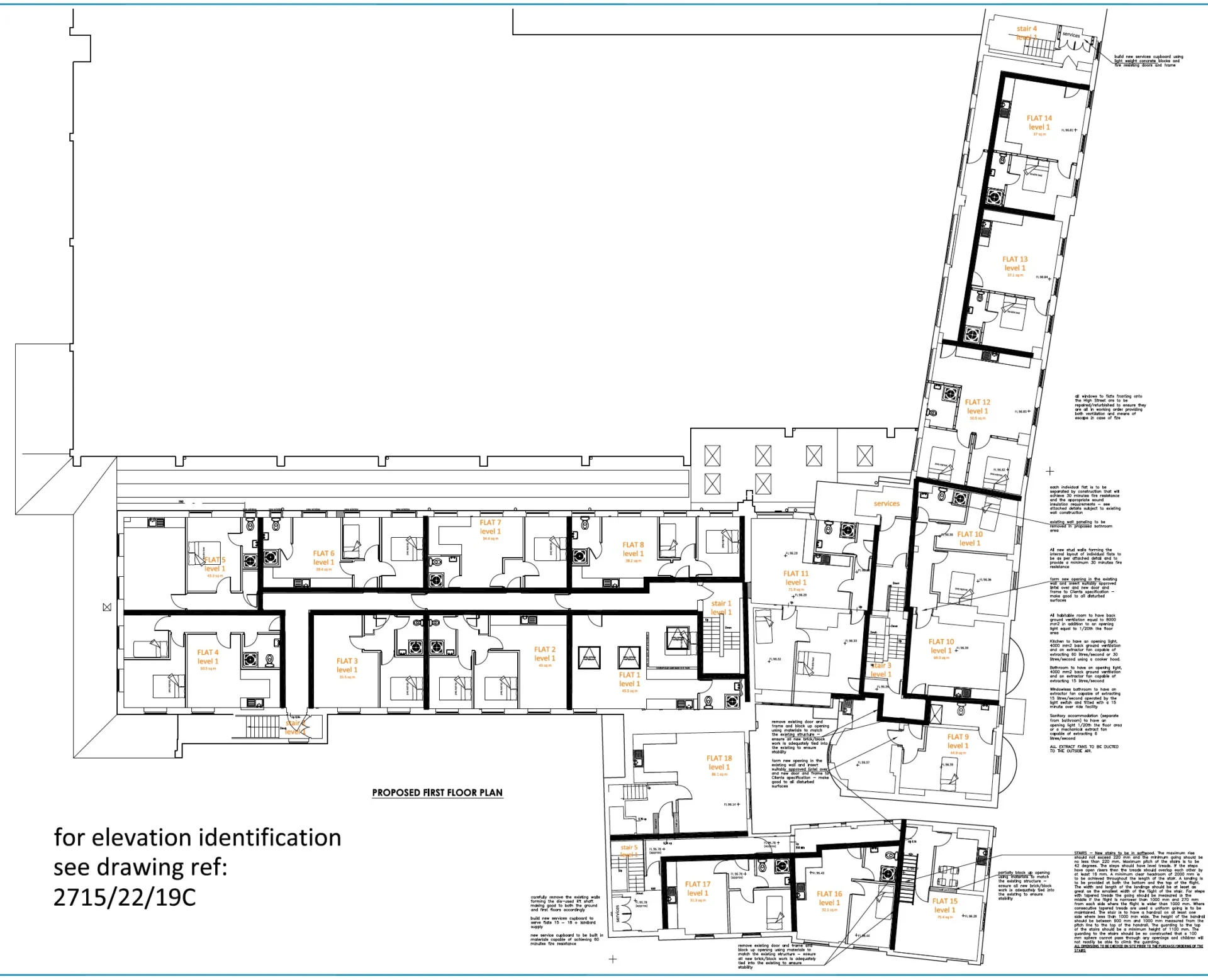
The application, submitted by JSE Estates Limited, seeks permission to change the use of the first and second floors into residential accommodation.
The scheme would create a mix of 12 one bedroom and nine two bedroom flats.
The site includes Grade II listed buildings at 48 and 50 High Street, with the wider row sitting within the Stone Conservation Area.
Most of the work would be internal, although planning documents say limited external changes are proposed, including new windows on the High Street Arcade side of the buildings.
The application also includes listed building consent.
Current use of the buildings
Planning documents state that much of the upper floor space has been vacant for more than a decade.
However, parts of the buildings are still occupied, including offices used by Direct Recruitment and the Rooftop Studios dance studio.
The planning statement says the proposal would involve the need to relocate the existing recruitment company and dance studio. It adds that there are “multiple potential alternative locations in the local area” for them.
Looking from the High Street, the application boundary runs from B&M to the AEDdonate Furniture shop.

No parking proposed
No dedicated parking is proposed for the 21 flats.
A transport statement submitted with the plans argues that the town centre location is suitable for a car free development, with shops, services, bus stops and Stone railway station within walking distance.
It also says the existing office and dance studio use could create more parking demand than the proposed flats.
Heritage and town centre use
A heritage assessment included with the application says the conversion would help bring underused upper floors back into use while preserving the character of the listed buildings and conservation area.
The applicant says the works would not cause harm to the heritage significance of the buildings.
Application called in to committee
The application has been formally called in for consideration by Stafford Borough Council’s planning committee.
A call in means the application is expected to be considered by the council’s planning committee, rather than decided by planning officers under delegated powers.
Councillor Rob Kenney, Stafford Borough councillor for St Michael’s and Stonefield, submitted the call in request, which has since been authorised by planning officers.
The request gives three reasons for the call in: the potential loss of employment floorspace, possible harm to town centre vitality and function, and conflict with the Stone Neighbourhood Plan.
The concern around town centre vitality is likely to be one of the key local issues, as the buildings are currently used by Direct Recruitment and Rooftop Studios.
Councillor Kenney said
“The proposed change of use would reduce the range and diversity of active uses within Stone town centre and diminish its role in supporting local employment and daytime activity.”
He also argues that the current use contributes to the town centre’s vitality and viability.
On the loss of employment space, Councillor Kenney said
“The proposed development would result in the loss of Class E employment-generating floorspace within Stone town centre, without sufficient evidence to demonstrate that the site is no longer viable or suitable for such use.”
The call in also says the proposal would conflict with the Stone Neighbourhood Plan, which seeks to support a diverse range of uses, maintain local employment opportunities, and enhance the vitality and viability of the town centre.
Have your say
Residents can view the plans and comment through Stafford Borough Council’s planning portal. The public consultation ends on the the 6th May 2026.
Planning portal – https://www12.staffordbc.gov.uk/online-applications/search.do?action=simple&searchType=Application
The planning reference is 25/41559/FUL.










